Este site utiliza cookies para permitir a mudança de língua e o armazenamento dos seus imóveis favoritos. Ao utilizar este site, concorda que o mesmo utilize cookies.

Apartamento T1 em Coimbra

265.000€



Referência

01132PL

Natureza

Venda

Tipo de Imóvel

Apartamento

Tipologia

T1

Estado

Em Construção

Certificado energético

Em execução

Ano

2029


Distrito

Coimbra

Concelho

Coimbra

Freguesia

Santo António dos Olivais

Código Postal

3000


Área Útil

49.84 m2

Área Bruta

69.27 m2

Área de Terreno

0 m2

Partilhar



Contactar Imobiliária

*Preenchimento obrigatório
Ao clicar em 'Enviar', declara que aceita a nossa Política de Privacidade.
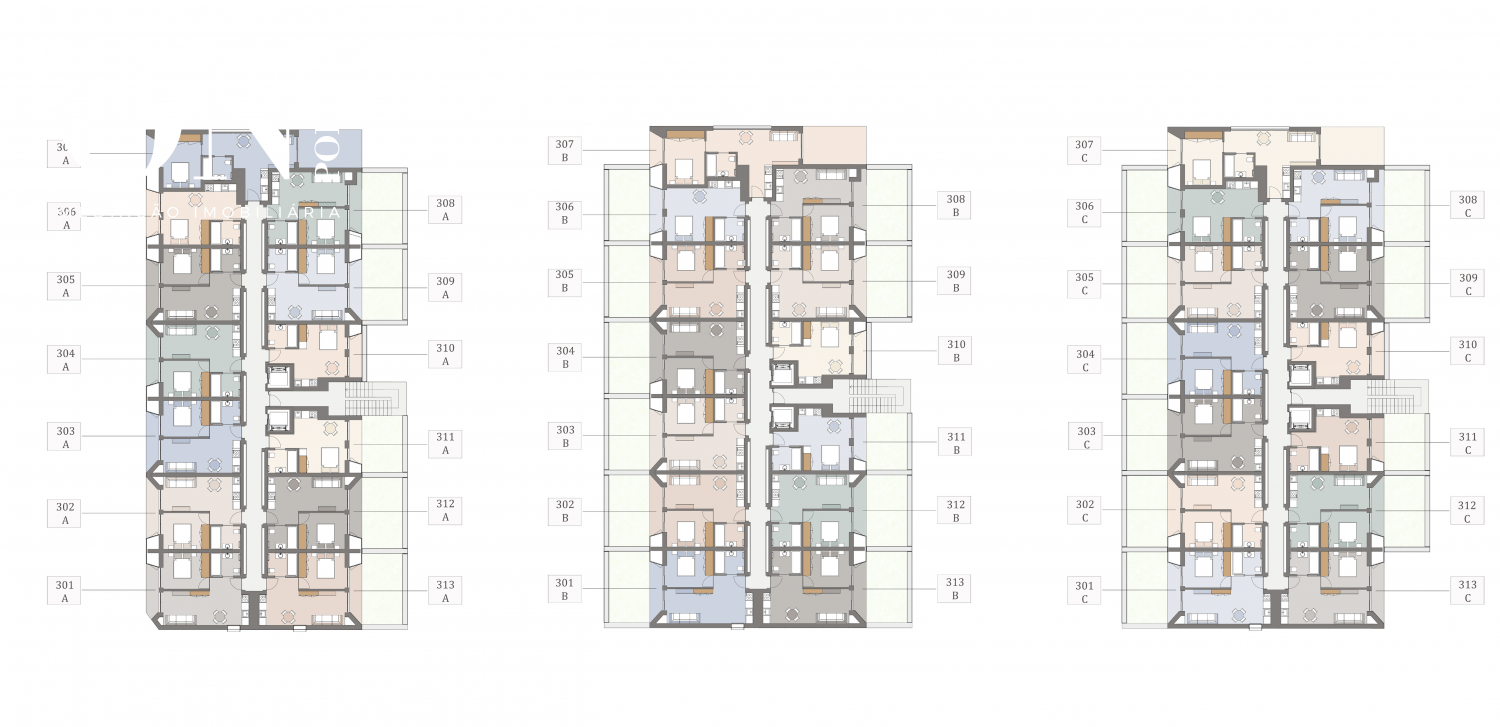
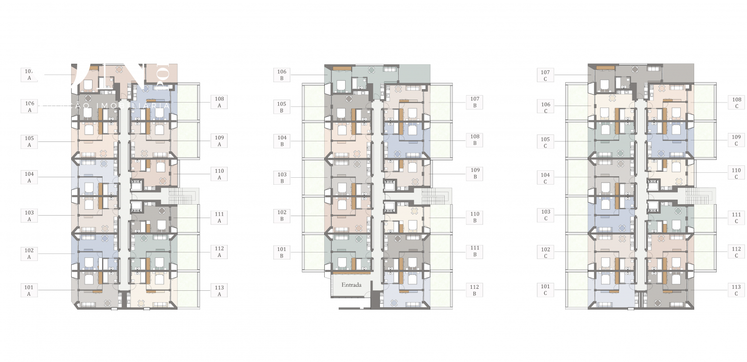
O UNIC é um empreendimento residencial moderno e sofisticado, pensado para quem procura qualidade, funcionalidade e uma localização privilegiada no coração de Coimbra. Apresenta-se como um edifício contemporâneo composto por três blocos independentes e um total de 192 apartamentos T0 e T1.

Cada fração foi cuidadosamente desenhada para oferecer conforto urbano, luminosidade e eficiência. Todas as unidades dispõem de varanda, lugar de garagem e acabamentos de elevada qualidade, com materiais selecionados para garantir durabilidade e bem-estar. As cozinhas e casas de banho seguem uma linha moderna e funcional, enquanto os epsaços interioes privilegiam a simplicidade elegante e a sensaçºao de amplitude.

A localização é um dos grandes destaques do INIC. situado na zona mais dinâmica de Coimbra, o empreendimento encontra-se a poucos metros do CHUC, do Hospital Pediátrico, da CUF Coimbra e do Polo III da Universidade de COimbra. Uma área onde a mobilidade, os serviços e a procura habitacinal se mantêm sempre em alta,  tornando este empreendimento uma excelente opção tanto para residência própria como para investimento. 

O edíficio oferece ainda:
- Halls de entrada amplos e envidraçados
- Elevadores modernos 
- Lavandaria comum equipada
- Estacionamento com ventilação e segurança
- Ar condicionado, bomba de calor e isolamento acústico
- Rede de telecomunicações completa
- Zonas comuns funcionais e bem iluminadas

O UNIC representa uma nova forma de viver Coimbra: moderna, prática e integrada no centro da vida académica e hospitalar da cidade. Um projeto pensado para quem valoriza conforto, mobilidade e qualidade de vida.

Quer saber mais? Fale connosco!!
Ligue-se à casa dos seus sonhos com a ON Porto!
Geral
ClimatizaçãoAr condicionado:Sim
ClimatizaçãoBomba de calor:Sim
CaixilhariaAluminio:Sim
CaixilhariaVidro Duplo:Sim
VistasCampo:Sim
VistasCidade:Sim
Exposição SolarNascente:Sim
Exposição SolarNorte:Sim
Exposição SolarPoente:Sim
GeraisNº de Divisões :1
GeraisNº de Casas de Banho:1
Quarto de BanhoComum:Sim
Luz NaturalMuito Iluminado:Sim
Ar CondicionadoSplits:Sim
GaragemLugar Interior:Sim
CozinhaMóveis lacado:Sim
CozinhaPlaca:Sim
CozinhaExaustor:Sim
PavimentoFlutuante:Sim
Varanda:4.5 m2
Terraço:14.93 m2

Imóveis
Semelhantes

Apartamento
Venda

268.000€

Apartamento T1 em Coimbra

268.000€

Coimbra / Coimbra / Santo António dos Olivais


Ref: 01139PL

Ref: 01139PL

50.19 m2

1

1

Em execução

Apartamento
Venda

271.000€

Apartamento T1 em Coimbra

271.000€

Coimbra / Coimbra / Santo António dos Olivais


Ref: 01176PL

Ref: 01176PL

50.19 m2

1

1

Em execução

Apartamento
Venda

274.000€

Apartamento T1 em Coimbra

274.000€

Coimbra / Coimbra / Santo António dos Olivais


Ref: 01177PL

Ref: 01177PL

50.19 m2

1

1

Em execução